

ボックスシリーズ
耐圧防爆形 コンビネーションスターター

耐圧防爆形 コンビネーションスターター
配線用遮断器及び電磁開閉器を収納し、内外部にオプションが取付可能
基本仕様
| 項目 | 基本仕様 |
|---|---|
| 型式 | NMG-□、NMYG-150 |
| 防爆構造 | d2G4 |
| 保護構造 | IP40 |
| 材質 | 鉄鋳物 |
| 標準色 | 5Y 7/1(内外面) |
| 使用エリア | Zone 1、Zone 2 |
| 使用温度範囲 | -20~+40℃ |
| 標準取付ユニット | 配線用遮断器、電磁開閉器、メータ(電圧計・電流計)、 表示灯、押釦/操作スイッチ、操作用変圧器、計器用変流器、 リレー、ヒューズ、タイマー ※漏電保護装置付も可能です。 ※サーマルリレーは自動復帰式となっております。 |
コンビネーションスターター定格一覧表
| 型式 | 電動機容量 (Kw) | 配線用遮断器(三菱電機製) | 電磁開閉器 (三菱電機製) | 電流計 | オプション | ||||||||||||
|---|---|---|---|---|---|---|---|---|---|---|---|---|---|---|---|---|---|
| 220V | 440V | 型式 | 型式 | 目盛 (A) | 電流計 | 表示灯 | スイッチ | リレー | タイマー | 変圧器 | 変流器 | ヒューズ | |||||
| NMG-18 | 0.2 | NF32-SV | MSO-T12 | 2 | 1 | 2 | 2 | 1 | – | – | – | 1 | |||||
| 0.4 | 〃 | 〃 | 3 | ||||||||||||||
| 0.75 | 〃 | 〃 | 5 | ||||||||||||||
| 1.5 | 〃 | 〃 | 10 | ||||||||||||||
| 2.2 | 〃 | 〃 | 15 | ||||||||||||||
| 3.7 | 〃 | MSO-T21 | 20 | ||||||||||||||
| NMG-35 | 3.7 | 〃 | MSO-T12 | 10 | 1 | 3 | 3 | 3 | 2 | 1 | 1 | 2 | |||||
| 2.2 | 〃 | 〃 | 15 | ||||||||||||||
| 3.7 | 〃 | 〃 | 20 | ||||||||||||||
| 5.5 | 〃 | MSO-T21 | 15 | ||||||||||||||
| 7.5 | 〃 | 〃 | 20 | ||||||||||||||
| 5.5 | 11 | NF63-CV | MSO-T25 | 30/5 | |||||||||||||
| 7.5 | 15 | 〃 | MSO-T35 | 40/5 | |||||||||||||
| NMG-65 | 7.5 | 15 | 〃 | 〃 | 40/5 | 1 | 3 | 3 | 3 | 1 | 1 | 1 | 2 | ||||
| 19 | NF125-CV | MSO-T50 | 50/5 | ||||||||||||||
| 11 | 22 | 〃 | 〃 | 60/5 | |||||||||||||
| 15 | 30 | 〃 | MSO-T65 | 75/5 | |||||||||||||
| NMG-100 | 15 | 30 | 〃 | 〃 | 75/5 | 1 | 3 | 3 | 2 | 1 | 1 | 1 | 2 | ||||
| 19 | 37 | NF250-CV | MSO-T80 | 100/5 | |||||||||||||
| 22 | 45 | 〃 | MSO-T100 | 120/5 | |||||||||||||
| NMG-200 | 22 | 45 | 〃 | 〃 | 120/5 | 1 | 3 | 3 | 3 | 1 | 1 | 1 | 2 | ||||
| 55 | 〃 | MSO-N120 | 150/5 | ||||||||||||||
| 30 | 〃 | 〃 | 150/5 | ||||||||||||||
| 37 | 75 | 〃 | MSO-N150 | 200/5 | |||||||||||||
| NMYG-150 | 11 | 22 | NF125-CV | S-N35 | 60/5 | 1 | 3 | 3 | 2 | 1 | 1 | 1 | 2 | ||||
| 15 | 30 | 〃 | S-N50 | 75/5 | |||||||||||||
| 19 | 37 | NF250-CV | 〃 | 100/5 | |||||||||||||
| 22 | 45 | 〃 | S-N65 | 120/5 | |||||||||||||
※NMG-18形は200V専用品です。
※NMYG-150形はY-Δ起動回路用(2接触器方式)です。
※NMG-18形を除いて漏電遮断器の装備が可能です。
NMG-18
| 取付機器 | ||
|---|---|---|
| 種類 | 仕様 | 数量 |
| 配線用遮断器 | 30AF 遮断容量 2.5KA ※1 | 1 |
| 電磁開閉器 | 220V 35A ※2 | 1 |
| リレー | 220V 6A | 0~1 |
| 表示灯 | 100, 200/24V 18mA | 0~2 |
| 押釦スイッチ 操作スイッチ | 550V 2A 500V 10A | 0~2 |
| 電圧計 電流計 | 220V 220V | 0~1 |
| 栓型ヒューズ | 220V 5A | 0~1 |
※2 サーマルリレー自動復帰式
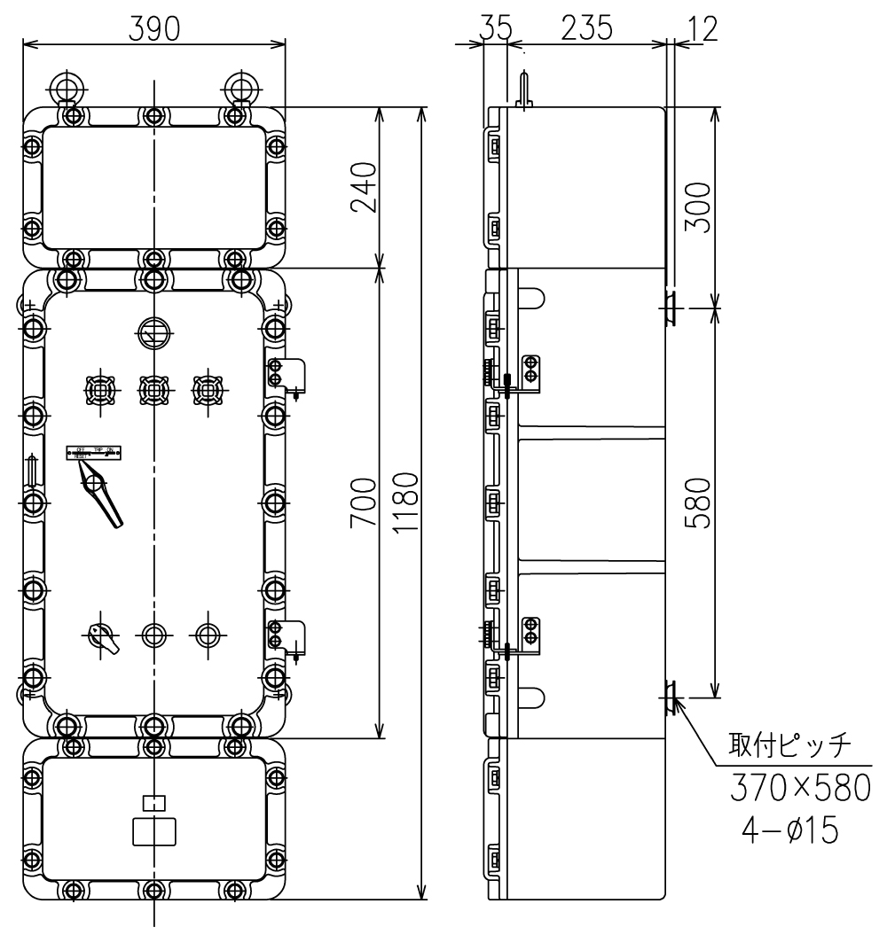
※ 右図は、上下端子箱付(最大寸法)の図です。仕様により、端子箱の有無が異なります。
下記、ユニット構成を参照ください。

NMG-35
| 取付機器 | ||
|---|---|---|
| 種類 | 仕様 | 数量 |
| 配線用遮断器 | 50AF 遮断容量 2.5KA ※1 | 1 |
| 電磁開閉器 | 440V 32A ※2 | 1 |
| リレー | 220V 6A | 0~3 |
| 表示灯 | 100, 200/24V 18mA | 0~3 |
| 押釦スイッチ 操作スイッチ | 550V 2A 500V 10A | 0~3 |
| 電圧計 電流計 | 440V 440V | 0~1 |
| 栓型ヒューズ | 440V 5A | 0~2 |
| 操作用変圧器 | 440/110V 1φ 75VA | 0~1 |
| 計器用変流器 | 440V 40/5A 15VA | 0~1 |
| タイマー | 220V 3A | 0~2 |
※2 サーマルリレー自動復帰式
※ 右図は、上下端子箱付(最大寸法)の図です。仕様により、端子箱の有無が異なります。
下記、ユニット構成を参照ください。

NMG-65
| 取付機器 | ||
|---|---|---|
| 種類 | 仕様 | 数量 |
| 配線用遮断器 | 100AF 遮断容量 7.5KA ※1 | 1 |
| 電磁開閉器 | 440V 65A ※2 | 1 |
| リレー | 220V 6A | 0~3 |
| 表示灯 | 100, 200/24V 18mA | 0~3 |
| 押釦スイッチ 操作スイッチ | 550V 2A 500V 10A | 0~3 |
| 電圧計 電流計 | 440V 440V | 0~1 |
| 栓型ヒューズ | 440V 5A | 0~2 |
| 操作用変圧器 | 440/110V 1φ 100VA | 0~1 |
| 計器用変流器 | 440V 75/5A 15VA | 0~1 |
| タイマー | 220V 3A | 0~2 |
※2 サーマルリレー自動復帰式
※ 右図は、上下端子箱付(最大寸法)の図です。仕様により、端子箱の有無が異なります。
下記、ユニット構成を参照ください。

NMG-100
| 取付機器 | ||
|---|---|---|
| 種類 | 仕様 | 数量 |
| 配線用遮断器 | 225AF 遮断容量 7.5KA ※1 | 1 |
| 電磁開閉器 | 440V 100A ※2 | 1 |
| リレー | 220V 6A | 0~2 |
| 表示灯 | 100, 200/24V 18mA | 0~3 |
| 押釦スイッチ 操作スイッチ | 550V 2A 500V 10A | 0~3 |
| 電圧計 電流計 | 440V 440V | 0~1 |
| 栓型ヒューズ | 440V 5A | 0~2 |
| 操作用変圧器 | 440/110V 1φ 200VA | 0~1 |
| 計器用変流器 | 440V 120/5A 15VA | 0~1 |
| タイマー | 220V 3A | 0~1 |
※2 サーマルリレー自動復帰式
※ 右図は、上下端子箱付(最大寸法)の図です。仕様により、端子箱の有無が異なります。
下記、ユニット構成を参照ください。

NMG-200
| 取付機器 | ||
|---|---|---|
| 種類 | 仕様 | 数量 |
| 配線用遮断器 | 225AF 遮断容量 7.5KA ※1 | 1 |
| 電磁開閉器 | 440V 200A ※2 | 1 |
| リレー | 220V 6A | 0~3 |
| 表示灯 | 100, 200/24V 18mA | 0~3 |
| 押釦スイッチ 操作スイッチ | 550V 2A 500V 10A | 0~3 |
| 電圧計 電流計 | 440V 440V | 0~1 |
| 栓型ヒューズ | 440V 5A | 0~2 |
| 操作用変圧器 | 440/110V 1φ 300VA | 0~1 |
| 計器用変流器 | 440V 200/5A 15VA | 0~1 |
| タイマー | 220V 3A | 0~1 |
※2 サーマルリレー自動復帰式
※ 右図は、上下端子箱付(最大寸法)の図です。仕様により、端子箱の有無が異なります。
下記、ユニット構成を参照ください。

NMYG-150( Y-Δ起動器盤 )
| 取付機器 | ||
|---|---|---|
| 種類 | 仕様 | 数量 |
| 配線用遮断器 | 225AF 遮断容量 7.5KA ※1 | 1 |
| 電磁開閉器 | 440V 150A ※2 | 1 |
| リレー | 220V 6A | 0~2 |
| 表示灯 | 100, 200/24V 18mA | 0~3 |
| 押釦スイッチ 操作スイッチ | 550V 2A 500V 10A | 0~3 |
| 電圧計 電流計 | 440V 440V | 0~1 |
| 栓型ヒューズ | 440V 5A | 0~2 |
| 操作用変圧器 | 440/110V 1φ 200VA | 0~1 |
| 計器用変流器 | 440V 120/5A 15VA | 0~1 |
| タイマー | 220V 3A | 0~1 |
| 電磁接触器 | 440V 100A | 0~1 |
※2 サーマルリレー自動復帰式
※ 右図は、上下端子箱付(最大寸法)の図です。仕様により、端子箱の有無が異なります。
下記、ユニット構成を参照ください。

注意事項
- 配線/運転/保守/点検作業は、防爆電気設備の施工、関連法規などの専門知識及び技能を持った方が実施ください。
- 危険場所に設置する場合、型式により設置可能な危険エリアが異なりますので、対応する危険エリアを必ずご確認ください。
- 寸法単位は全てmmとなっております。
- 仕様/デザイン等は予告無く変更する場合がございます。
- 本ウェブサイトに掲載されているデータの著作権・商標権等の知的財産権は当社に帰属しているか、当社が第三者より使用許諾を得て掲載しているもので、第三者に帰属しています。 当社又は権利所有者の事前の承諾なしに、本ウェブサイトの掲載内容すべてまたは一部の複製、改変、送信、配布、販売、出版、掲示、転載等を禁じます。






